Airport City Masterplan

Comprehensive masterplan to create a £650 million mixed use business district at Manchester Airport.

Airport City Masterplan

Comprehensive masterplan to create a £650 million mixed use business district at Manchester Airport.

Client. MAG Group
Location. Manchester Airport
Value & Size. £650 million / 1.2 million sqft Offices / 530,000 sqft Advanced Manufacturing / c. 1,300 Key Hotel / 62,000 sqft Ancillary Retail / 13 acre Central Park
Services. Masterplanning / Architecture
Status. On-Going

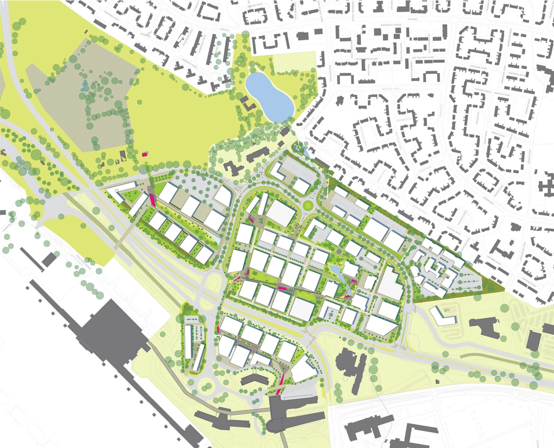
Airports have become much more than just a place of transit – they are often the economic engine of a city and a commercial centre in their own right. Manchester is the largest airport outside of the South East, the main gateway to the North and a key driver for the regional economy.

Since 2008, 5plus has been retained to assist in the long term masterplanning of the wider airport operational area with a particular focus on its commercial assets. Our brief focused on complementing the core aviation activities; providing the setting, accommodation and product to attract national and international firms who would not otherwise relocate to the region

An ambitious plan has developed that will transform the airport into an economic hub and destination in its own right, with a focus on increasing long haul flights, improved ground transportation and the delivery of a real estate platform to enable further business opportunities in health, logistics, cargo, advanced manufacturing and corporate sectors.

We have sought to create a masterplan framework that is flexible – something that can adapt and change over time. Since commencing work on the scheme we have gone from boom to recession and back again. The client structure has changed and markets have changed bringing different priorities. We and our masterplan therefore have remained flexible – responding to these internal and outside forces whilst ensuring the vision remains intact.

Our most recent work on Airport City has been the development of proposals and submission of a planning application for 92,000 sqft office buildings and accompanying multi-storey car park. The plans also include extensive landscaping surrounding the sustainable, new Airport City Bridge, also designed by 5plus.

E-Plots
The two six-storey buildings share an almost identical appearance and layout, with a glass and steel-look. Combined, they will offer 184,000 sqft of Grade A office space, along with ground floor amenities including co-working spaces and cycle storage facilities.

The new multi-storey car park will provide a total of 1,497 car parking spaces across eight levels for office workers and hotel guests – along with ground floor commercial units. It will feature ‘pleated’ anodised aluminium panels on the exterior that are perforated to allow natural light to enter during the day.

Two new offices will be built at the site, in anticipation of likely future occupier demand, helping address the lack of available Grade-A office accommodation in the city region.

Bridge
As part of our ongoing role as masterplan guardian for the ‘Airport City Manchester’ project we were commissioned to prepare proposals for a central bridge across the M56 motorway spur, providing a new footbridge connection between Airport and Airport City. The new bridge will provide access for cyclists and pedestrians in neighbouring Wythenshawe and the wider area to the employment opportunities at the Airport.

The footbridge will also enhance the plausibility and deliverability of the early phases of the masterplan, driving early fundamental connections and informing the urban grain to be developed. A number of structural solutions were explored which were informed by the physical constraints of the site and specific performance criteria. The final solution spans 50m and will be supported by piers at either end with bearings.

The bridges predominant material is perforated weathering steel. The combination of minimal maintenance liabilities and it’s patination over time, enabling it to blend into the neighbouring urban development and landscape, make it ideal for this use. The decision to use apertures within the metal surface allows 24 hour visual connectivity between footbridge users and motorists below, allowing a depth of perception through the structure both during the day and in evening hours. Other materials to be used include resin bound gravel, exposed structural concrete and planar glazing complimented by a temporary public realm which will ultimately allow the structure to be subsumed within the emerging masterplan.

Construction commenced in late 2019, with the bridge moved into place over the road in summer 2020. The bridge was opened to the public in 2021.

Aerial Site View
Concept Sketch
Concept Sketch
Masterplan Sketch
Masterplan

“5plus are an integral part of the Airport City delivery team, delivering expert advice and design flair underpinned by a commercial acumen and pragmatism.”

Adam White
MAG Property

Similar Projects

View
AMIDS Masterplan Glasgow
Unlocking the economic and cultural potential of the Glasgow City Region.
View
Airport City Bridge
Pedestrian and cycle bridge is a key enabling infrastructure connection for our emerging Airport City Masterplan.