Fabrica Manchester

Creating a catalyst for regeneration in Ancoats Manchester.

Fabrica Manchester

Creating a catalyst for regeneration in Ancoats Manchester.

Client. Royal London Asset Management
Location. Manchester
Value & Size. £12.5 million / 150 Bed Hotel / 20,000 sqft Office
Service. Architecture
Status. Completed

Fabrica forms one half of the first phase of a major regeneration project. Prior to development the site was occupied by two retail warehouses and associated surface car parking. Previous buildings on the site had reached the end of their useful life and RLAM was therefore seeking the wholesale regeneration of this prominent site capitalising on its inherent landmark status and bringing increased, long term value to its investment holding.

The development is sensitive, high quality and contextual. Urban connections and the relationship with neighbouring districts are behind every decision.

A 150 bedroom budget hotel pre let to Accor was designed to fit with the context, along with a circa 20,000 sqft of grade A office building with associated commercial uses lining the new public spaces. Phase two has been reviewed as either residential or workplace development and will complete the city block.

Project Team
Photography. Mark Waugh
Awards
2013 BCO Regional Winner
Concept Sketch
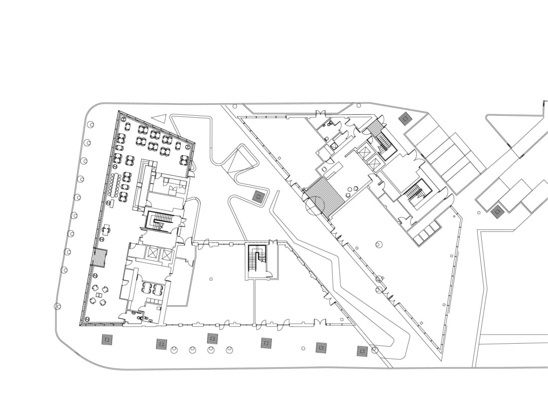
Ground Floor Plan
Typical Upper Floor Plan

Similar Projects

View
The Hive Manchester
Pioneering low budget sustainable mixed use offices and retail in Manchester's Northern Quarter.
View
Trafford Town Hall
RIBA Award winning Civic Offices and Library for Trafford Council.