Five St Philips Birmingham

Landmark office retrofit and extension in Birmingham's prime Central Business District.

Five St Philips Birmingham

Landmark office retrofit and extension in Birmingham's prime Central Business District.

Client. Royal London Asset Management
Location. Birmingham
Value & Size. £14.7 million / 87,900 sqft
Services. Architecture / Interiors / Signage
Status. Completed

Five St Philips is an existing building located at the heart of Birmingham’s Central Business District, at the corner of Colmore Row and St Philips Place. The building is situated within the Colmore Row and Environs Conservation area, adjacent to the Grade I Listed Birmingham Cathedral and fronting Birmingham’s most prestigious square, Cathedral Square. The site is the former Blue Coat School, which was established in 1730 and stood on the site until 1930.

The existing building, constructed between 1935-1937, is the former Prudential Assurance Building designed by their in-house architect Phillip Boughton Chatwin. The original design boasts a neo-classical exterior in Portland Stone with a doric order. The interior had undergone several refurbishments over the past eight decades, the most recent being an extensive remodelling in 2003 by Temple Cox Nicholls. The remodel consisted of infilling the internal lightwells to all floors, adding an external ramp, stair, and entrance canopy at Ground Floor, adding a mansard roof to the Sixth Floor and a metal clad plant room to the Seventh Floor.

The current scheme secured planning approval in April 2020. Construction began in October 2022 and the building completed in April 2024.

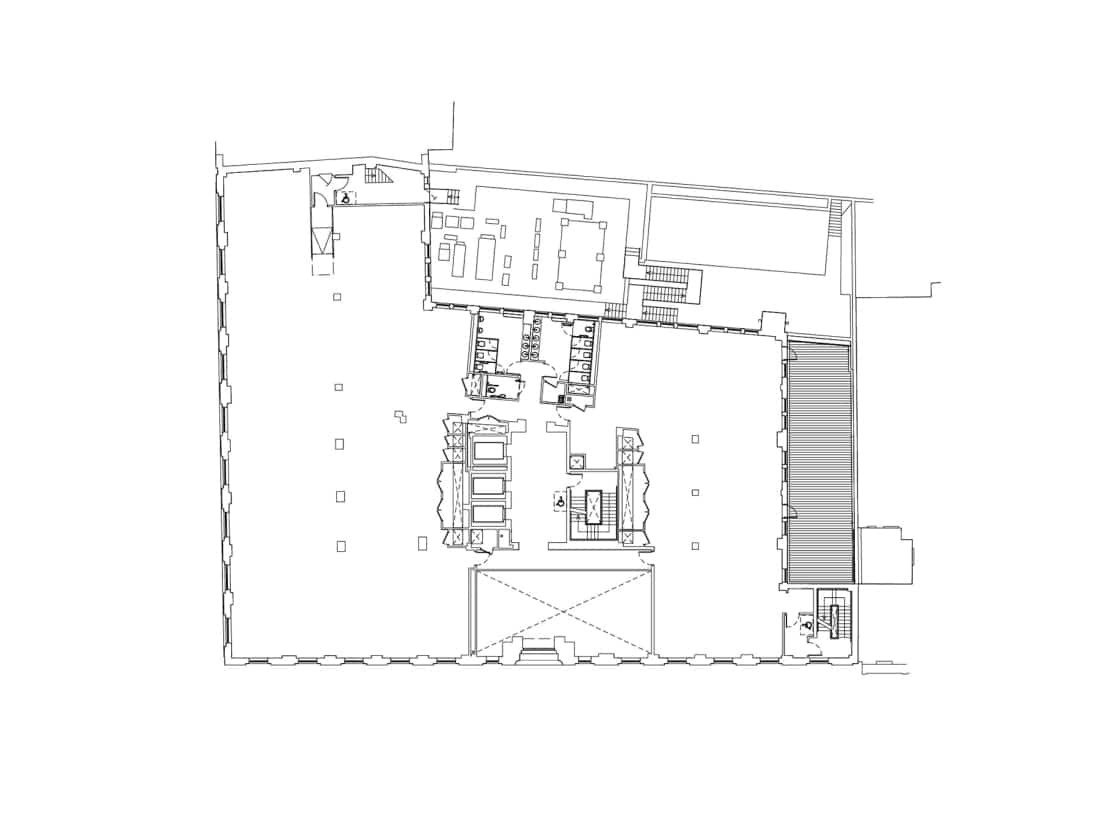
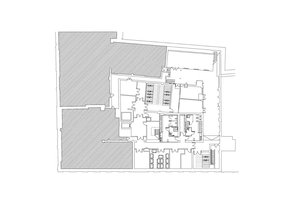
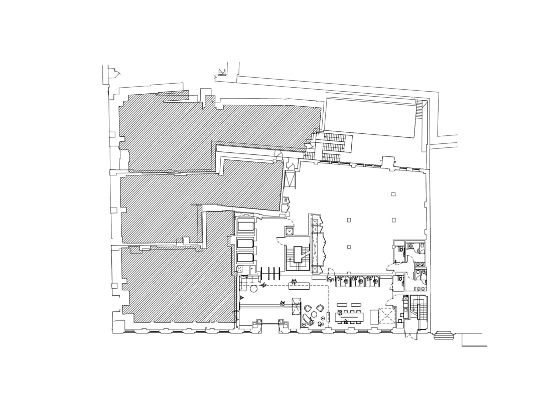
This comprehensive refurbishment and alteration was considered within the context of this sensitive setting and has delivered 65,200 sqft of Grade A commercial workspace across eight storeys. The scheme has created a new accessible entrance lobby and front door with a nod to the buildings’ art deco fretwork. A spectacular new 1,800 sqft double height reception space is complimented by a versatile business lounge within an intimate reach of, and backdrop to, Cathedral Square. A reconfigured core delivers an additional lift, all new lift cars, a new washroom core and fully glazed office entrances leading onto each office suite with views of Birmingham Cathedral visible from every lift lobby and in turn every office arrival space. Each office suite maximises its volume by delivering an exposed soffit and servicing strategy, with the key concentration of services concealed above perforated metal rafts, with integrated lighting and acoustic attenuation. A new raised access floor contains the displacement ventilation. The office suites typically range between 9,400 – 9,700 sqft, the First Floor office suite at 8,500 sqft is complimented by an 860 sqft private external terrace. All of which have the flexibility to be sub-divided. Two smaller suites at 1,100 sqft and 4,400 ftsq have also been created.

The rationalisation of the top floor internal and external plant rooms has made space for a new rooftop extension with direct access onto a 2,000 sqft south facing rooftop terrace overlooking Cathedral Square and the rooftops of Colmore Row. A flexible space has also been created for an exclusive office or a communal amenity space which opens out onto the terrace. The terrace can be used for both private and/or communal use.

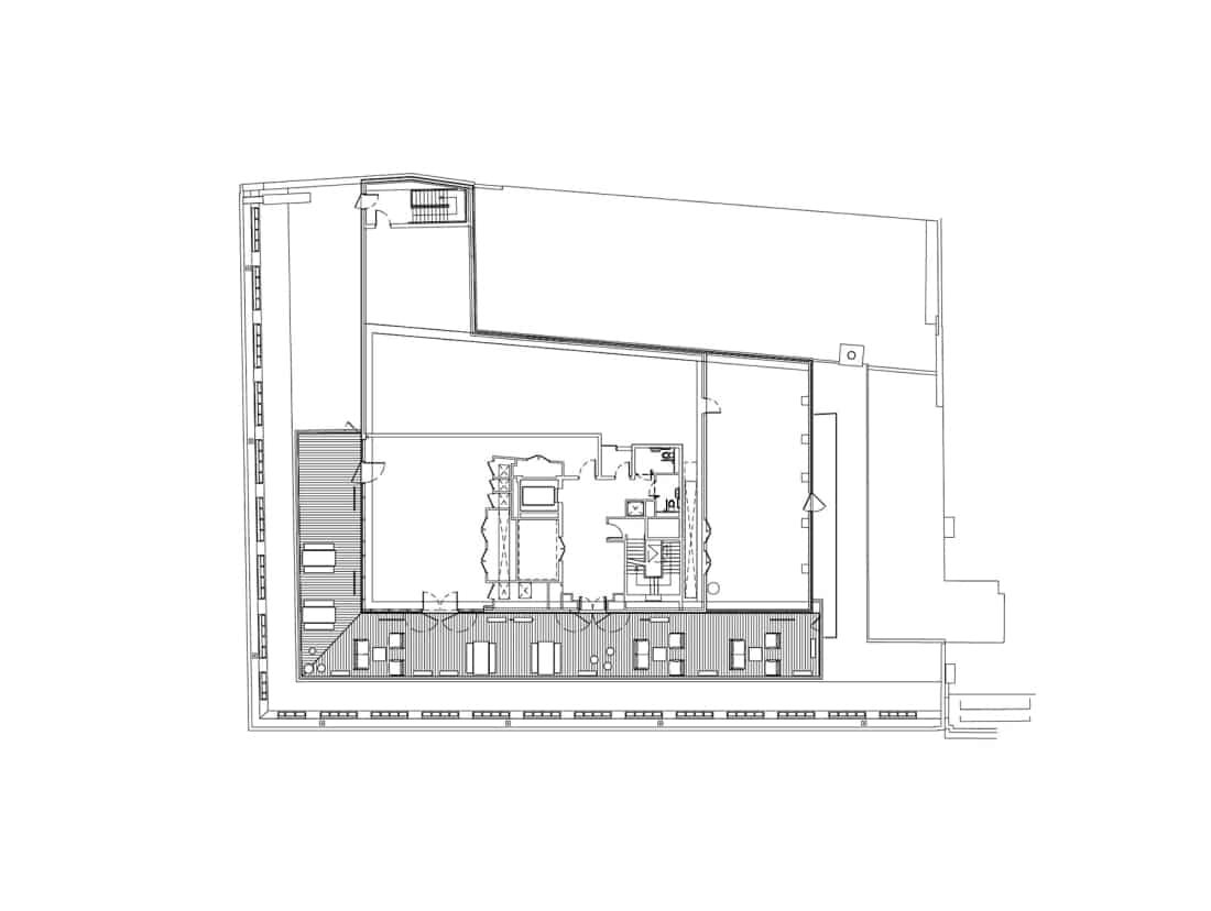
Within the basement, a full suite of staff facilities has been created including both a staff and visitor cycle store, staff showers with private changing space, communal changing space with vanity, ironing facilities and secure lockers and a secure drying room.

The scheme achieves NABERS UK DfP ‘4 Star’, EPC ‘B’, BREEAM ‘Excellent’, WiredScore ‘Platinum’, SmartScore ‘Enabled’ and Well Building Standard ‘Gold’.

Performance Targets
BREEAM. Excellent
WELL Building Standard. Gold
WiredScore. Platinum
SmartScore. Enabled
NABERS UK / Design for Performance. 4 Stars DfP
Project Team
Project Manger. Rougemont Property Consultants
Structural/Civil Engineer. Heyne Tillett Steel (HTS)
Building Services Engineer. Cundall
Sustainability Consultant. Cundall
Quantity Surveyor. Gardiner & Theobald (G&T)
Planning Consultant. CBRE
Fire Engineer. Cundall
Acoustic Consultant. Cundall
CDM Principal Designer. 5plus (via Bureau Veritas)
Building Control. Sweco
Agent(s). Knight Frank / Savills
CDM Client Advisor. Bureau Veritas
FF&E. The Furniture Practice
Contractor. Willmott Dixon Interiors
Visualisation Artist (CGI). Picto Studios
Photography. Tom Bird
Awards
Mixology North Award
Press
Architects’ Journal
Elevation
Section
Seventh Floor Plan
2-6 Floor Plan
First Floor Plan
Ground Floor Plan
Basement Plan

Similar Projects

View
Two Brindley Birmingham
Repositioning a major office building in Birmingham's acclaimed Brindley Place.
View
100 Barbirolli
The second phase of regeneration for these epochal office buildings with extensions and transformative workplace interventions.