Merseyway Innovation Centre Stockport

Refurbishment of existing retail space to create a co-working offering with private offices and supporting spaces.

Merseyway Innovation Centre Stockport

Refurbishment of existing retail space to create a co-working offering with private offices and supporting spaces.

Client. Stockport Metropolitan Borough Council
Location. Stockport
Value & Size. £2.5 million / 15,000 sqft
Service. Architecture / Interiors
Status. Completed

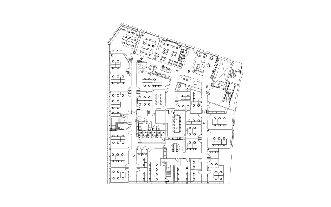
The Merseyway Innovation Centre is located at First Floor level within the existing Merseyway Shopping Centre fronting on to Merseyway itself. It provides a new shared working space that re-purposes existing vacant retail space to provide a centrally located and accessible business innovation centre. The centre offers flexible serviced office and co-working accommodation for new start up and existing small businesses including:

  • Business Lounge – For customers and guests of the centre providing opportunities for collaboration and development.
  • Co-Working Space – Bookable desks for small and micro businesses or individuals working remotely. A first step for some in terms of growing their new business.
  • Starter Business Units/Offices – Shared or individual offices for between one and four people aimed at new start-up/young businesses requiring incubation space and support.
  • Grow on Space/Offices – Aimed at larger businesses with capacity for between 4 and 10 desks
  • Meeting Rooms and Support Space – Compromising of bookable meeting rooms, kitchen and welfare rooms.

In addition to the internal re-configuration and fit out of the first floor space, design work included new significant elements of external envelope to provide new and increased areas of glazing to provide better daylight for the internal office accommodation and offer some environmental upgrade of the existing fabric. A new entrance at Ground Floor level fronts Merseyway and creates a new front door to afford access to the first floor accommodation via a refurbished existing lift and staircase. The ground floor entrance space also accommodate 4 secure cycle spaces along with storage/drying room accommodation for cyclists/users.

The re-purposing of the space provides a low up front embodied carbon approach whilst significant fabric upgrades create significant improvements to operational energy demands. In keeping with this approach perimeter serviced office space is designed to be naturally ventilated with the opportunity to retrofit MVHR units only if required by tenants. Existing escape staircases will be maintained. These are shared with the ground and basement tenants. New building services are proposed throughout. Refurbishment works due complete summer 2023.

In the design of the space we have eliminated materials that are not needed such as suspended ceilings and specified materials with that have both a high recycled content and that are long lasting with minimum maintenance requirements.

Project Team
Structural Engineer. Renaissance
Building Services Engineer. CBRE
Acoustic Engineer. Sandy Brown
Quantity Surveyor. CBRE
Project Manager. CBRE
Approved Inspector. Ball and Berry
Principle Contractor. TMT
Awards
BCO Regional Award
Existing Building and Stockport High Street

“Merseyway Innovation Centre is already proving to be a true success story in Stockport’s Economic Plan. I’m thrilled that it is now open for business welcoming occupants, assisting the sustained growth of young businesses in the area.”

Cllr Colin Macalister
Cabinet Member for Economy and Regeneration at Stockport Council
Floor Plan