University of Salford NERIC (Robotics)

A catalyst University research facility to further the application of robotics within the health, food and automotive sectors.

University of Salford NERIC (Robotics)

A catalyst University research facility to further the application of robotics within the health, food and automotive sectors.

Client. University of Salford
Location. Salford
Value & Size. £8 million / 22,000 sqft
Service. Architecture / Interiors
Status. Completed

This project has seen us develop the brief, prepare design proposals and obtain planning permission for a new build research and development space within the wider, Salford Crescent and University masterplan. The ‘Innovation Centre’ will sit within the university’s new high-tech ‘innovation district’.

The aim of the centre is to provide a facility for small and medium sized companies in the Greater Manchester area to develop their skills, improve their business and production processes, digital technologies, products and services using robotics and automation. Our proposals have been designed in response to a prescriptive brief and complex equipment requirements which will allow the building to support this aspiration whilst regenerating a brownfield site and meeting sustainability targets.

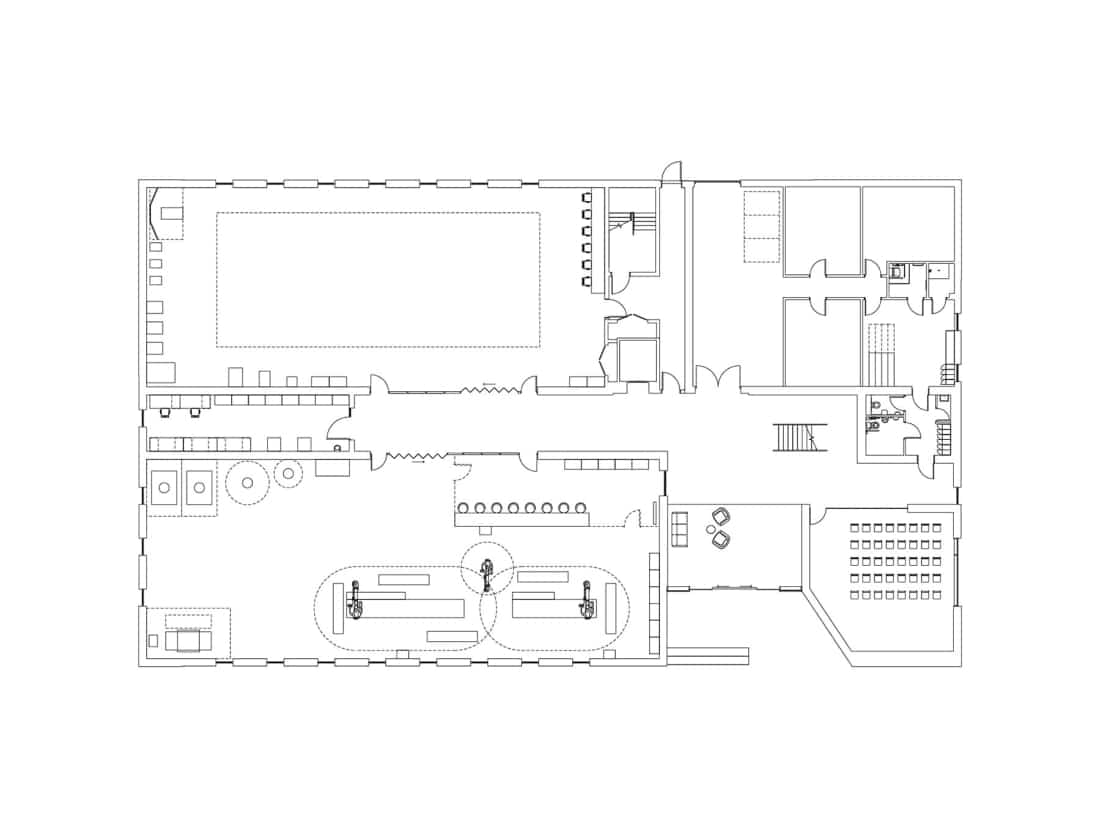
The building is arranged as a series of stacked laboratories, linked by a main feature stair which sits at the heart of the building. The laboratories are strategically positioned depending on their various needs. Both Intelligent Mobility Transport and Food & Manufacturing are located on the ground floor, with Health Technology sitting above the entrance. Collectively they accommodate a full range of industry applications with each lab being designed for future flexibility allowing for different uses and layouts.

The remaining accommodation, including offices, meeting rooms, collaboration zones and workshops positioned on the ground floor and in the fourth and final ‘leg’ of the building, on the first floor. Externally a simple palette of materials is used. The base is brick, with the upper levels clad with a metal standing seam. The Robotics project is conceived as a catalyst project, attracting other high-tech employers to the area and providing Salford with a competitive advantage over other cities within the region.

Project Team
Structural Engineer. RoC
M&E. Buro Happold
Main Contractor. Morgan Sindall
Quantity Surveyor. F&G
Ground Floor Plan

Similar Projects

View
City of Salford and University Masterplan
International competition winning scheme providing a development framework for the University of Salford campus and the wider community beyond.
View
AMIDS Masterplan Glasgow
Unlocking the economic and cultural potential of the Glasgow City Region.