No.1 West Bar Square Sheffield

A landmark BREEAM Excellent office forming the gateway to West Bar Square.

No.1 West Bar Square Sheffield

A landmark BREEAM Excellent office forming the gateway to West Bar Square.

Client. Urbo
Location. Sheffield
Value & Size. £26 million / 100,000 sqft
Services. Architecture
Status. Completed

West Bar Square is a major mixed-use scheme comprising of Residential, Office, Commercial and Car Parking uses located to the North of Sheffield City Centre. 5plus has acted as masterplanner and architect for the development since early 2011 successfully securing outline planning consent in February 2017 and has subsequently been commissioned to deliver the first Grade A office building within the masterplan.

No.1 West Bar Square (Office 04a) comprises approximately 100,000 sqft NIA of Grade A office over ground plus seven upper levels of accommodation.

All of the commercial buildings around the square are conceived as a family each of which is embedded in Sheffield and the sites specific industrial past. The buildings work as a collective but also as individual buildings with those addressing Bridge Street being of a raw materiality whereas those fronting Corporation Street more of a polished and fabricated steel product.

No.1 West Bar Square sits at the end of the spectrum and is the building that is most connected to the new commercial style of the city. Its character depicts the more polished, refined end of the metalwork production cycle. No.1 West Bar Square is the gateway signature building to the square in both form and style.

A tripartite arrangement of Top, Middle and Bottom is enshrined within the elevation and building design. The bottom of the building is conceived as a generous set back colonnade with GRC clad circular columns creating a strong base.

Upper floors are fully glazed floor to floor panels faceted to follow the sweeping curve of the building form. Minimal spandrel panels are formed from glazed insulated shadow box to create a whole glass, polished facade with exceptionally high transparency.

The solid metal architectural folded panels at the plant enclosure create a ‘top’ to the tripartite design and act as a crown to the rear elevation catching different elements of light to that of the façade below.

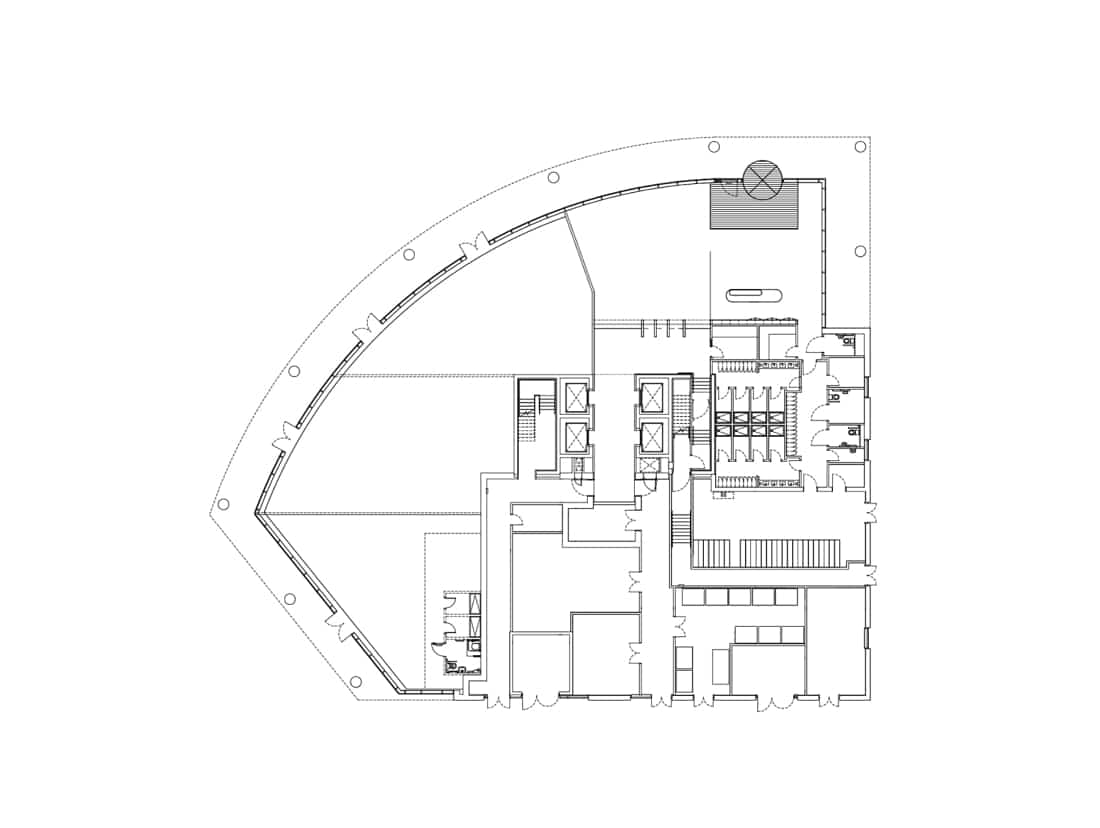
The primary entrance to the building is off West Bar Square to the north, via a generous reception space. The ground floor also includes a cycle hub with associated changing facilities and A1-A4 retail space to the west of the ground floor footprint addressing the Corporation Street elevation and the arrival into the square.

Typical office floors, levels one to six, are arranged around a central core comprising passenger lifts and unisex supaloo WC provision and the associated riser and stair provision.

The typical floor is a column free circa 13,500 sqft NIA floorplate offering maximum flexibility of occupation for single or up to 4 tenants per floor. The uppermost office level, level seven, includes an external terrace providing external amenity for all building occupants affording panoramic views south and west.

The overall vision for West Bar Square looks to create a series of high quality, green spaces to encourage the use of each area and promote sustainability and wildlife.

Within the scope of the landscape design for No.1 West Bar Square is the delivery of West Bar Square along with temporary routes to afford pedestrian connections to Bridge Street and the existing Riverside Business District.

A key principle of re-development has been the requirement to tackle climate change, in particularly Environment Agency flood requirements with respect to site levels and existing structures. This has necessitated the demolition of all existing buildings and re-profiling of the site. Whilst most of the existing buildings on site were of a low architectural quality, some would have been worthy of consideration of retention/re-purposing under different environmental circumstances. Recognising the increased embodied carbon inherent in new build versus refurbishment, design work has focussed on the recycling of demolition material to create the new site profile as part of the new sub-base and formation levels for the new buildings.

A SUDS drainage and landscape strategy has also been adopted that extends the existing “grey to green” public realm from West Bar through a series of raingardens and landscape attenuation features so the site acts as a better neighbour to existing adjacent sites whilst creating a green buffer between the road and proposed buildings.

No 01 West Bar Square is designed to be low energy and low carbon in operation and will achieve a 35% improvement on current Part L and have an EPC rating of A and BREEAM ENE 01 Score of 0.45 (Excellent). Beyond the fabric first approach to energy demand the residual requirements are reduced further through the provision of a PV array and air sourced heat pump (for domestic hot water) to meet the Sheffield City Council requirements for a minimum of 10% renewables.

A strategy of non-fossil fuel use, combined with the fabric first approach allows demand from the grid to be minimised and that demand to be met wholly through renewable tariffs enabling a zero carbon development in use.

Project Team
Landscape Architect. Planit.ie
Planning Consultant. Asteer
Transport and Flood Engineer. Mott Macdonald
Civil and Structural Engineer. Mott Macdonald
Building Services Engineer. Buro Happold
Principal Designer. Gardiner and Theobald
Project Manager. Gardiner and Theobald
Quantity Surveyor. Gardiner and Theobald
Fire Engineer. DFC
Acoustic Engineer. Lighthouse Acoustics
Approved Inspector. Ball and Berry
BREEAM Assessor. Mainer Associates
Principal Contractor. Bowmer and Kirkland
Visualisation Artist (CGI). Dematerial
BIM Model
North Elevation
South Elevation
Seventh Floor Plan
First Floor Plan
Ground Floor Plan

Similar Projects

View
West Bar Square Sheffield
A prestigious new address in the heart of Sheffield’s City Centre West Bar Business District. Transforming this area into a vibrant mixed-use environment for living, working and socialising.
View
Soho Yard Sheffield
368 Build-to-rent dwellings in two landmark buildings within our £300 million West Bar Square masterplan in Sheffield City Centre.