Yotel Manchester
Deep retrofit office to hotel for international operator within the Lincoln Square masterplan.
Yotel Manchester
Deep retrofit office to hotel for international operator within the Lincoln Square masterplan.
Client. Qbic Hotels
Location. Manchester
Value & Size. £21.5 million / 261 Bed Hotel + 8,700 sqft Commercial
Service. Architecture
Status. Completed
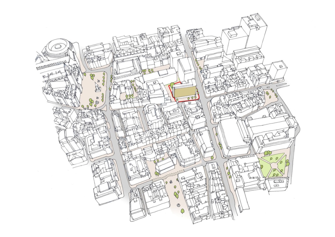
The former John Dalton House occupies a gateway site in Manchester City Centre, adjacent to the city’s prime business area, Spinningfields.
Sustainability issues run through this significant retrofit project with a key aspiration to maintain as much as possible of the existing building. Typically, around 50-60% of all embodied carbon within a new building is contained within the foundations and superstructure, so refurbishing the building rather than demolishing it dramatically reduced the carbon footprint of the project. The retained existing concrete frame has an irregular grid and low floor to ceiling heights and despite there also being abundant asbestos findings, underused basement facilities and redundant cladding structures, maintaining the existing structure to its fullest was considered “the right thing to do”.
To ensure viability, with an optimum number of hotel guest rooms, key interventions included the addition of two extra storeys and the construction of a new primary core on the south elevation. The additional two storeys work positively to create additional height and presence to the street corner and responds appropriately to the importance and prominence of the gateway corner site.
Occupying a strategically important corner, the building presents a bold façade with a crisp screen which acts as a fine voile helping to turn the corner in a more vertical nature to reflect the new scale of development adjacent and complementing the proportions of the new 125 Deansgate adjacent.
A double storey base is incorporated and, above, the distinctive gold veil is designed to declutter the building. It is this device that brings all of the disparate parts together in one single architectural statement, and hides a multitude of sins in terms of the structural grid. The veil is made of regency gold anodized aluminium and is intended to complement Deansgate’s materiality. The most significant buildings down Deansgate are yellow sandstone – our building was conceived as a modern take on that.
Mulberry Square, located to the rear of the building, forms a new urban space that will accommodate outdoor seating for the hotel, enclosed by the Lincoln and 125 Deansgate. Active frontages and public realm alongside the major building adaptations allow for further contextual siting and locates the building within the overall Lincoln Square masterplan. The more subdued elevational treatments to Mulberry Square reflect the contextual relationships between the primary active frontages of Deansgate and John Dalton Street and the more protected character of Mulberry Square.
Project Team
Cost Consultant. Arcadis
Planning Consultants. Deloitte
Project Manager. Buro Four
Landscape Architect. LAYER Landscape
Fire Engineers. Exova
F&B Consultant. Des McDonald Associates
Structural Engineers. Shepherd Gilmour
Principle Designer. Leslie Clark
Building Control. Ball & Berry
Interior Designers. Keane Brands
Photography. Tom Bird
View of Existing Building from John Dalton Street
View of Mulberry Square
Context Sketch
Key Interventions
Concept CGI