203 Willesden Lane Kilburn

Traditional mansion house typology re-imagined for suburban infill site.

203 Willesden Lane Kilburn

Traditional mansion house typology re-imagined for suburban infill site.

Client. Fresh Lime Developments
Location. Kilburn, London
Value & Size. £2 million / 8 Dwellings
Services. Architecture / Interiors
Status. Completed

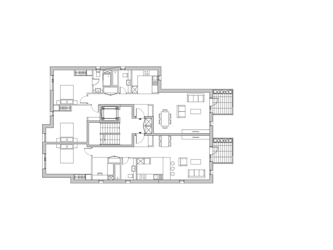
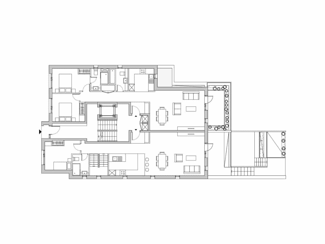
This residential project has included the demolition of an existing multiapartment building and the construction of 8 new dwellings at 203 Willesden Lane, Kilburn. Prior to our involvement, the site had previously been subject to a number planning applications. We worked to analyse previous planning failures and successes to develop a scheme which would achieve planning. Our proposals innovatively accommodate increased landscape to the front elevation, despite covering the same footprint as the previous consent.

The dwelling comprise of a mix of 1, 2 and 3-bed properties in accordance with local housing need. The units have been designed to exceed the requirement set out in London Housing Design Guide, and all living areas and amenity spaces face south towards the large garden to optimise solar access and views of the garden.

All dwellings have dual aspects and benefit from natural ventilation. In response to the local vernacular, the materials for the proposed development are traditional brick, metal and bronze, but used in a contemporary contextual manner. Due to the small, residential nature of the scheme, we undertook a targeted and proportionate approach to community consultation. This involved appropriately scaled public consultation with local residents and stakeholders. We also undertook pre-application discussions with Brent Council.

The scheme represents a well-considered and sensitive design response to complement the site and neighbouring buildings. It provides high quality, sustainable homes including one, two and three bedroom units. The project is due to complete in summer 2018 and we would be happy to provide a visit to the site.

Project Team
Photography. Tom Bird
Ground Floor Plan
First Floor Plan

Similar Projects

View
Trent Bridge Quays Nottingham
Trent Bridge Quays is the first development of 95 riverside homes creating a riverside residential quarter for Nottingham.
View
Spinners Yard
Brownfield regeneration creating a build-to-rent community in central Leeds.