22-26 Cross Street Manchester

A sensitive refurbishment in Manchester’s commercial core.

22-26 Cross Street Manchester

A sensitive refurbishment in Manchester’s commercial core.

Client. Catalyst Capital
Location. Manchester
Value & Size. £2.2 million / 27,700 sqft
Service. Architecture / Interiors
Status. Completed

22-26 Cross Street is located in a prominent position in the traditional retail / commercial core and within St Ann’s conservation area. Completed in the 1930’s in a traditional style and faced in Portland Stone, 22- 26 Cross Street was vacant with the exception of the retail unit at street level.

The building was in need of new life, to be brought back to its former glory and provide unique Grade A office space whilst retaining the internal historic character.

Phase 1 of the works, completed in 2011, included the sensitive refurbishment of the envelope and completion of the newly occupied retail unit at ground and basement levels. The internal refurbishment includes a new reception area and Cat A fit-out of the upper floors.

The building comprises eight stories of office suites ranging from 2,670 sqft to 3,585 sqft (GIA) which are capable of splitting, with a total area of 27,770 sqft. The reception and common areas are finished to a high quality in a contemporary style.

Project Team
Photography. Adrian Lambert
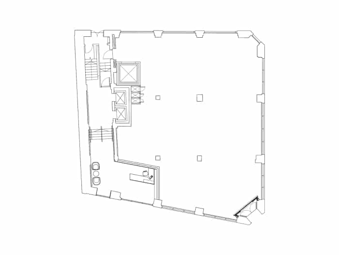
Ground Floor Plan
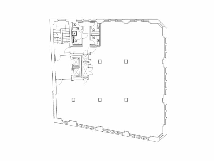
Typical Upper Floor Plan

Similar Projects

View
Five St Philips Birmingham
Landmark office retrofit and extension in Birmingham's prime Central Business District.
View
100 Barbirolli
The second phase of regeneration for these epochal office buildings with extensions and transformative workplace interventions.