AstraZeneca Headquarters Cambridge

Providing new ways of working with flexibility and connectivity for pharmaceutical giant AstraZeneca.

AstraZeneca Headquarters Cambridge

Providing new ways of working with flexibility and connectivity for pharmaceutical giant AstraZeneca.

Client. AstraZeneca
Location. Cambridge
Value & Size. Confidential / 30,000 sqft
Services. Architecture / Interiors
Status. Completed

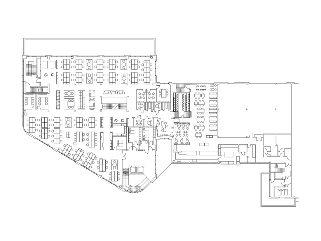
As part of AstraZeneca’s estate review we were selected to design the fit-out of the new head offices in Cambridge. The base-build comprised just over 30,000 sqft in Academy House, a three storey office building completed in 2015 and a floor of the adjacent Unex House.

Whilst developing the detailed brief, a concept based on atomic structure and connections, became an analogy for the nodes of the organisation and the connections between them. This translates from the introduction of a triple height, top lit staircase at the centre of the floorplate supporting informal interaction, through to the bespoke joinery and graphic wall coverings.

The design embraces AstraZeneca’s ‘i-work’ concept and is built on activity based working and the use of neighbourhoods to informally zone the space. Working closely with the various components of the business we identified an appropriate mix and proportion of work styles including; shared desk spaces, sit stand desks, two person pods, activity booths, meeting rooms, kitchen tables, semi private acoustic booths, and high backed break out chairs with laptop tables.

Bespoke joinery hubs, formed in exposed high grade plywood, house storage, printers and lockers and punctuate the open plan areas. A hospitality area, adjacent to the stair can hold events in an open plan lounge style and be used by staff to support informal interaction and happen stance meeting.

The restaurant that will also serve a nearby future AstraZeneca office will host ‘town hall’ meetings as well as informal meetings and gatherings during less busy times of the day. The height of the space allows for stepped seating providing a setting for the team to congregate in a theatre style format. IT played a significant part and has been integrated seamlessly, all rooms are VC enabled and two telepresence rooms are also provided.

Awards
Mixology North Winner
Second Floor Plan

Similar Projects

View
BASF UK Headquarters
Delivering an activity based work environment for a leading chemical company.
View
NHS Smarter Working
Providing agile workplaces for NHS Strategic Workplace National Roll-Out.