BASF UK Headquarters

Delivering an activity based work environment for a leading chemical company.

BASF UK Headquarters

Delivering an activity based work environment for a leading chemical company.

Client. BASF
Location. Stockport
Value & Size. £1.9 million / 21,500 sqft
Service. Architecture / Interiors
Status. Completed

In 2020 we completed the UK HQ for the global chemical giant BASF in Stockport town centre. Right from building selection stage we enjoyed a long and productive relationship with the client where every decision was tested and carefully considered.

One of the synergies between 5plus and BASF is our approach to sustainable development. We were inspired by BASF heritage and forward thinking sustainable approach. In 1994 BASF was one of the first companies worldwide to publicly commit to sustainable development. It thus took on a pioneering role which continues to this day in the company’s work on sustainability.

We undertook a research study into interior finishes, materials and furniture which feature raw ingredients produced by BASF. We then specified these products throughout the office space, knowing that they were derived from a low energy and sustainable source.

The strong working relationship within the team overcame many challenges, including our proposal to connect the two floors together for better connectivity between the staff. The base building was not engineered in a way that would easily allow the open connection but we collectively achieved a solution that balanced all the technical and fire restraints whilst achieving the design and aesthetics originally proposed.

Project Team
Project Manager. JLL
Quantity Surveyor. JLL
Brief and Strategic Workplace Consultant. Baker Stewart
M&E Engineer. Hilson Moran
Structural Engineer. Curtins
Acoustician. Sandy Brown
Furniture Consultant. The Furniture Practice
Contractor. Overbury
Photography. Tom Bird
Look and Feel Concept Board
Signage 'Toolkit'

“With clever and innovative use of space along with in-depth research and analysis of how our existing space was being used we believe we have absolutely achieved our goal.”

Chris Skurray, Facilities Manager
UK & Ireland. BASF
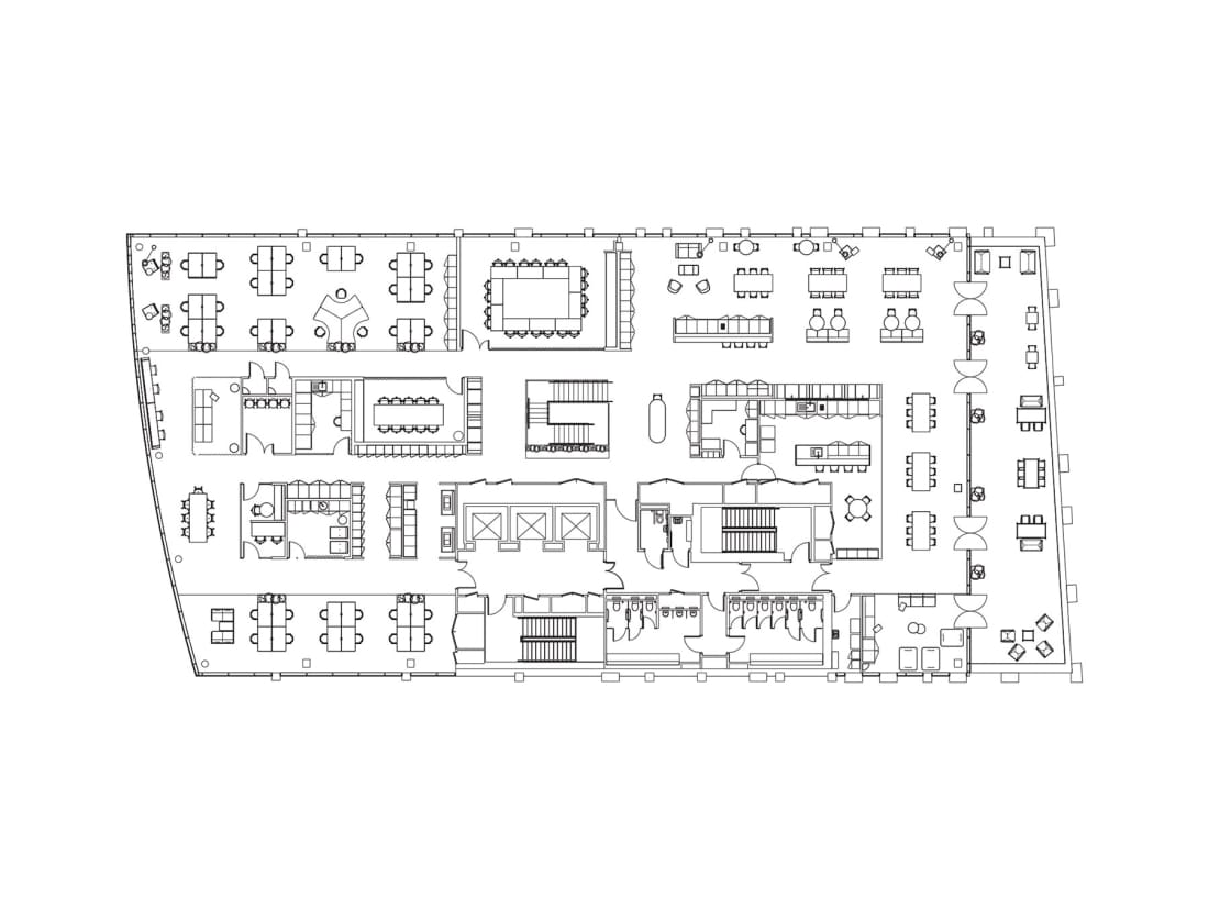
Level 4 Floor Plan
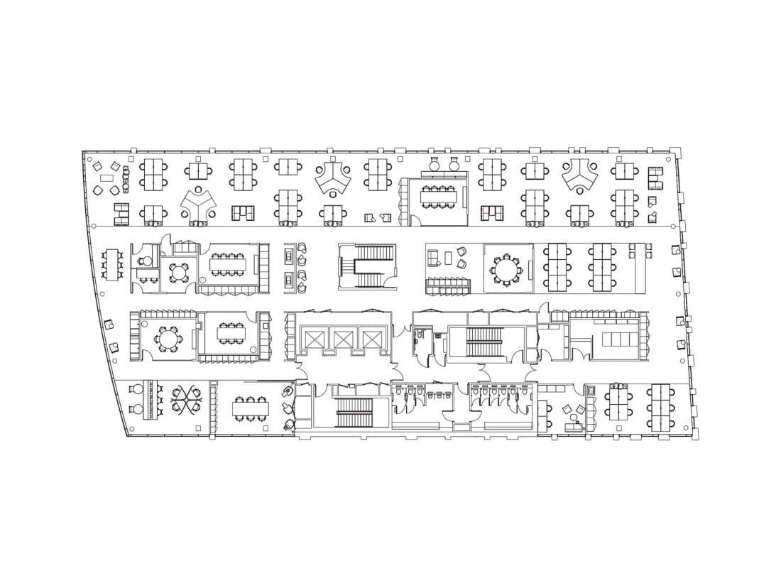
Level 5 Floor Plan

Similar Projects

View
Merseyway Innovation Centre Stockport
Refurbishment of existing retail space to create a co-working offering with private offices and supporting spaces.
View
NHS Smarter Working
Providing agile workplaces for NHS Strategic Workplace National Roll-Out.