Move Urmston Leisure Centre

Transformation of dated building into new-contemporary pool and leisure facility for the local community.

Move Urmston Leisure Centre

Transformation of dated building into new-contemporary pool and leisure facility for the local community.

Client. Trafford Council / Trafford Leisure
Location. Manchester
Value & Size. £20 million / 31,000 sqft
Service. Architecture
Status. Completed

Urmston Leisure Centre is a sustainable part refurbishment and part new build facility providing a valuable service to the local community. The project was completed in March 2020. The project included the partial demolition and extension of the existing 1990s leisure centre, and the inclusion of new social and community leisure facilities as part of the Council’s wider plans to improve the health and wellbeing offer in Trafford.

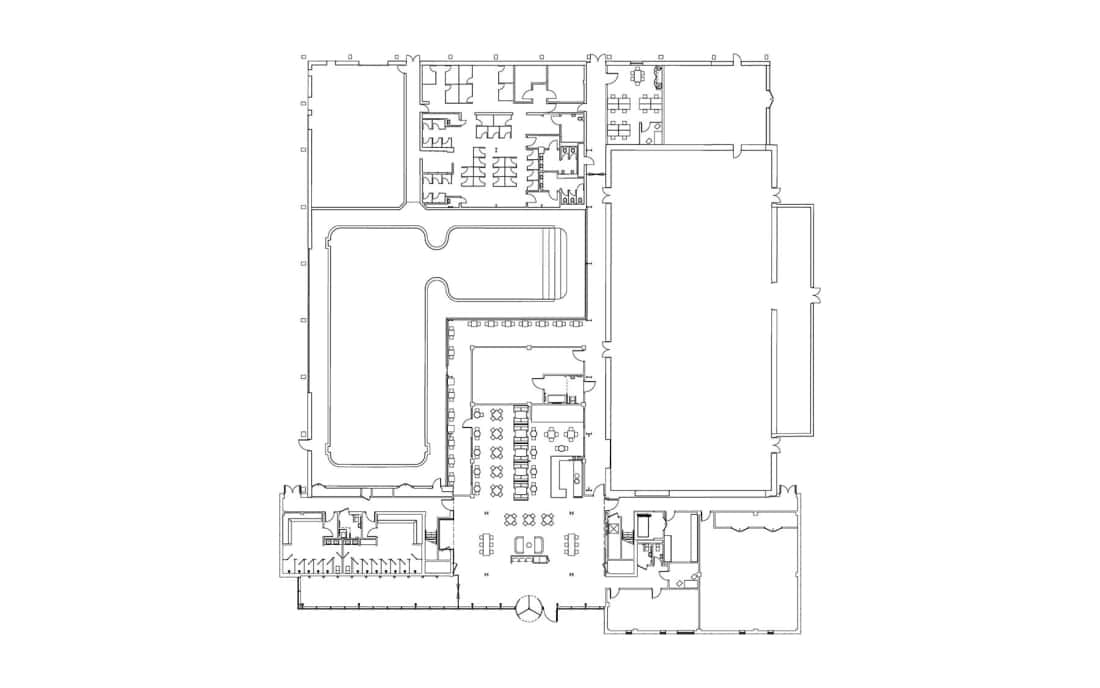
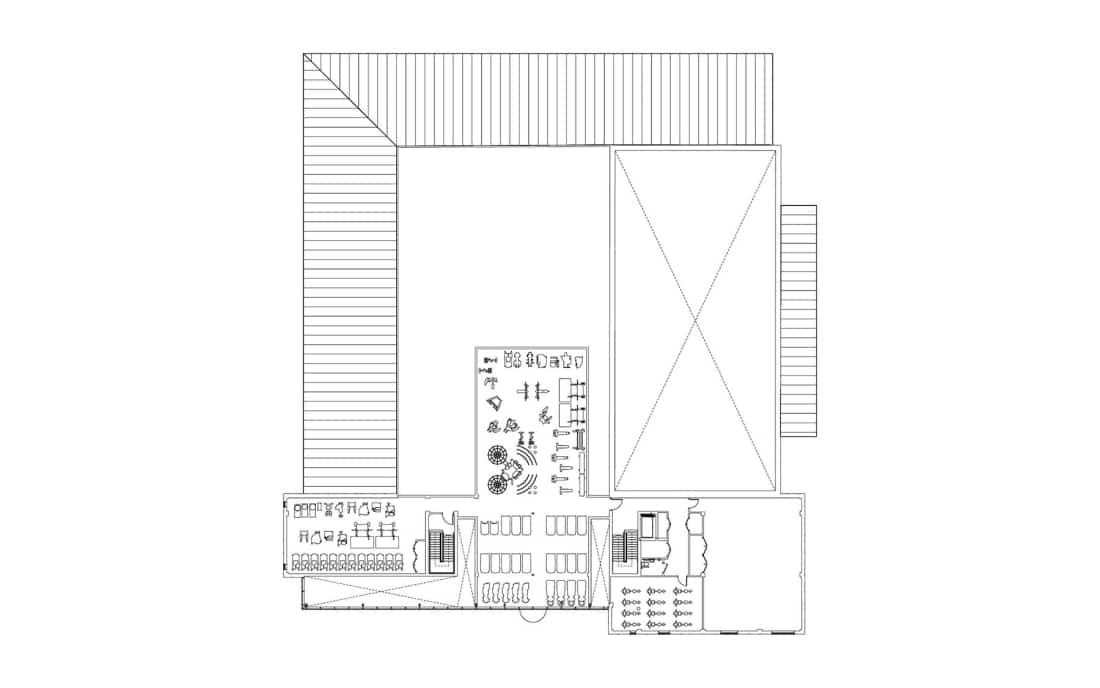
The front of the existing building has been extensively remodelled with the existing swimming pool and sports hall upgraded as part of the plans. Our design replaces the poorly planned existing entrance and gym areas with a welcoming double height lounge / café overlooking the pool. Solid volumes either side of the entrance space house the new facilities including the studios, premium changing rooms and a climbing wall. A large new gym is located on the first floor, with expansive glazing maximising the natural light. Adjacent studio rooms are designed for a variety of uses from spin classes to yoga.

The new building significantly reduces heat loss and energy usage through new plant and sensible, efficient low energy design. A natural ventilation strategy was created in the existing sports hall with cooling systems retained.

Alongside the architectural commission we were also appointed to design the wayfinding and signage around the centre. We created a bespoke system of icons which graphically represents the activity or function of that area. This helps orientate users around the centre.

In addition to Urmston, we have also assisted the Council in undertaking feasibility studies for a number of sites across Sale and Stretford to identify the appropriate location for a further two new centres.

Project Team
Structural Engineer. HL Structural Engineers
Building Services Engineer. Hoare Lea
Acoustic Engineer. Hoare Lea
Fire Engineer. Hoare Lea
Quantity Surveyor. Gardiner & Theobald
Project Manager. Gardiner & Theobald
Landscape Architect. Planit IE Limited
Principle Designer. Gardiner & Theobald
Principle Contractor. ISG
Photography. Tom Bird
Press
RIBA Journal
Place North West
Initial Site Visit
Concept Sketch
Activity Zones
Concept CGI
Side Elevation
Front Elevation

“Their approach challenged us to think differently, how could the building inspire from the outside as well as inside. We have a vision to become the most active place in England, and 5plus has been an integral partner to work with in the design of our new Move Urmston.”

Jo Cherret, Chief Operating Officer
Trafford Leisure
Ground Floor Plan
First Floor Plan

Similar Projects

View
Local Crescent Residential Community
A residential renaissance in central Salford with the provision of 400 dwellings with new gardens and public spaces.
View
Yotel Manchester
Deep retrofit office to hotel for international operator within the Lincoln Square masterplan.