Premier Inn Plot H5 Mix Manchester

A new 276 bed hotel at Mix Manchester completing a new public square.

Premier Inn Plot H5 Mix Manchester

A new 276 bed hotel at Mix Manchester completing a new public square.

Client. Empiric Property Services
Location. Manchester
Value & Size. £22 million / 61,150 sqft / 276 Key Hotel
Services. Architecture
Status. On-Going

This 5plus designed hotel for Premier Inn represents the largest new build hotel in the north of England at the Mix Manchester masterplan at Manchester Airport. The scheme comprises 276 bedrooms with associated front of house fronting onto a new public square alongside a footbridge already delivered by 5plus.

The materiality of the scheme is influenced by the Corten steel footbridge and how this aged over time with varying hues of orange and deep red. Punched windows with coloured surrounds echo the materiality of the bridge and neighbouring buildings creating a family of buildings which enliven the new public space which the hotel fronts.

Performance Targets
BREEAM. Excellent
Project Team
Project Manger. Rihbell
Structural Engineer. ROC
Building Services Engineer. Couch Perry Wilkes
Acoustic Engineer. Sandy Brown
Fire Engineer. DFC
Quantity Surveyor. Atkins Realis
Planning Consultant. MAG Planning
CDM Principal Designer. Abacus
Approved Inspector. Sweco
Masterplan Architect. 5plus
Contractor. BCEGI
Visualisation Artist (CGI). Virtual Planit
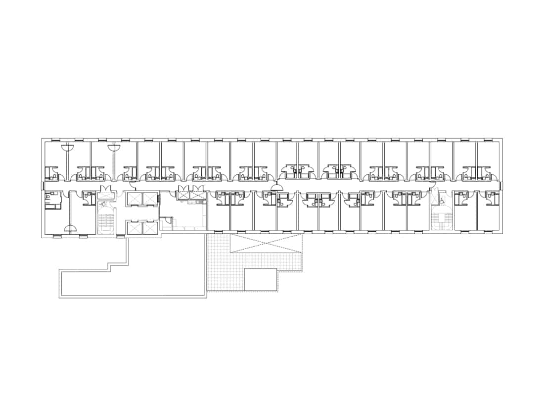
Typical Upper Floor Plan
First Floor Plan
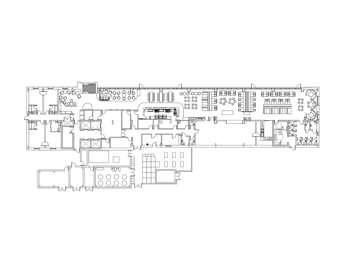
Ground Floor Plan

Similar Projects

View
Airport City Masterplan
Comprehensive masterplan to create a £650 million mixed use business district at Manchester Airport.
View
City Road Hotel
Delivery of landmark international hotel at Old Street digital cluster. Sunday Times Award - Best Places to Stay 2021