School of Computing Science and Engineering

A new centre for collaborative learning and research.

School of Computing Science and Engineering

A new centre for collaborative learning and research.

Client. University of Salford
Location. Salford
Value & Size. £50 million / 129,150 sqft
Services. Architecture / Interiors
Status. Concept

5plus, as part of our emerging masterplanning work at the University of Salford, have been appointed to investigate the feasibility of the relocation of the School of Computing, Science and Engineering, currently located in the Newton Building, to a new purpose built facility. The aim is to deliver a new centre for collaborative learning and research, in the heart of the campus.

The new-build and relocation of the Newton Building is an ambitious proposal. The building is currently under-utilised and not fit for purpose. We have assessed the viability of the proposed site, the space required within the building, and the potential for a new build. A number of design options have been explored with the academic steering group which have resulted in this initial and ambitious response.

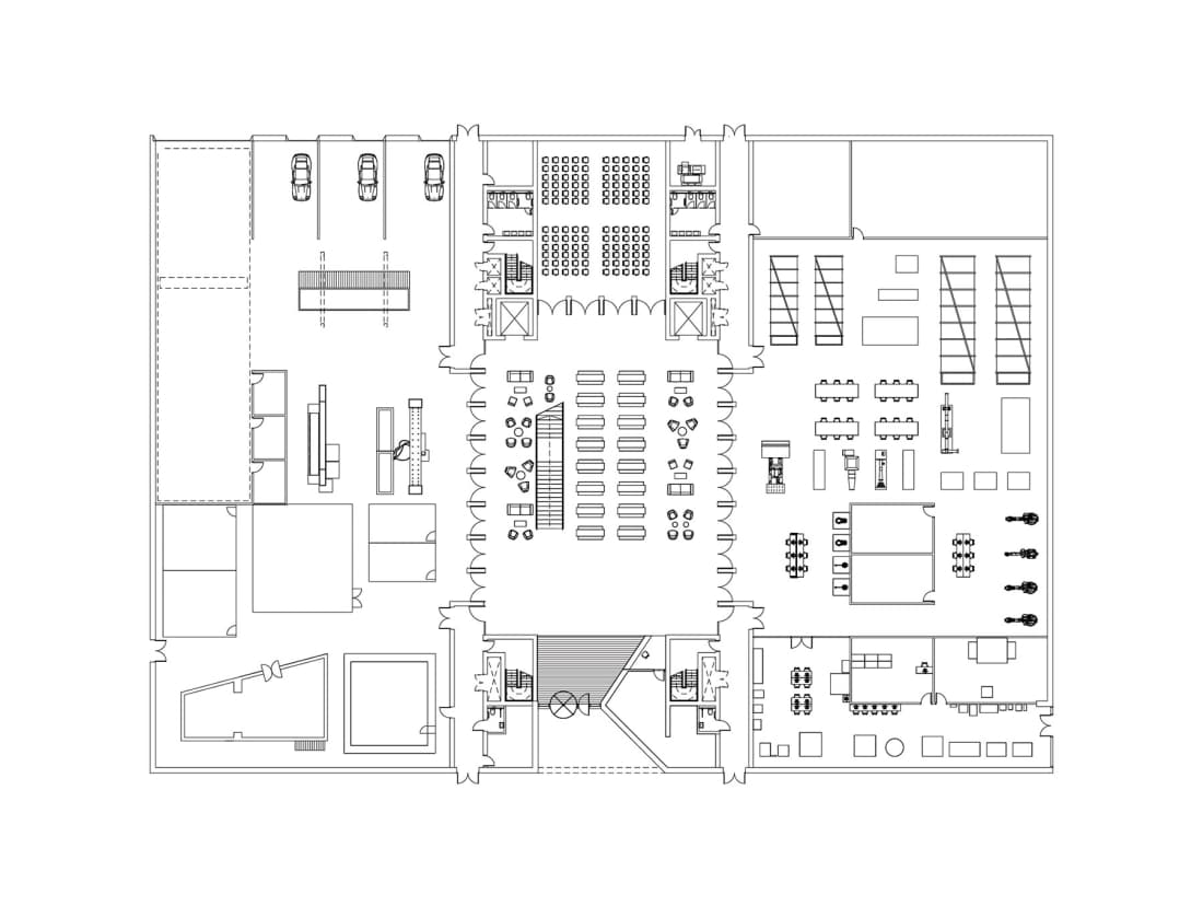
We have used the existing building to form the basis of the areas required within the new building. We have added to this brief to include additional areas. Key spaces incorporated into the scheme
include:

  • Workshop Hangars
  • Laboratories
  • Atria
  • Social Learning Spaces
  • Octave
  • Multi-Functional Spaces
  • Open Labs
  • Teaching Rooms

Following this initial study, further validation, technical resolution and cost engineering was provided as part of an RIBA Stage D – Concept Design document.

Building Section
Building Section
Ground Floor Plan

Similar Projects

View
City of Salford and University Masterplan
International competition winning scheme providing a development framework for the University of Salford campus and the wider community beyond.
View
University of Salford NERIC (Robotics)
A catalyst University research facility to further the application of robotics within the health, food and automotive sectors.