University Centre Warrington

Deep retrofit and re-purpose of redundant town centre retail space to create a new dynamic studying facility for the University of Chester.

University Centre Warrington

Deep retrofit and re-purpose of redundant town centre retail space to create a new dynamic studying facility for the University of Chester.

Client. University of Chester
Location. Warrington
Value & Size. £1.2 million / 15,000 sqft
Service. Architecture / Interiors
Status. Completed

We were appointed to explore designs for a new highly flexible, digital centric, ‘University Centre’. The project, located within Muse’s new Time Square development provides an opportunity to showcase University activity in the heart of Warrington as part of a mixed-use development, alongside the new Market Hall and Council offices.

The project is comprised of a highly flexible fit-out of agile learning spaces, digital hub and student services offer totalling 15,000 sqft of space. At ground floor, the vision is to create a digitally rich environment which can promote the University as well as engage with the current student intake as well as the public.

Using a mixture of digital screens, wayfinding and infographics the space will be both stimulating and visually engaging. Painted soffit, structure and services with contrasting lighting bring character and colour, whilst wall graphics provide an interior identity to the space. Joinery and furniture complete the vision, offering collaborative and private settings whilst providing a vibrant studying environment. The Welcome Area hosts informal soft lounge seating for students divided by joinery units displaying information about the university as well as providing advice and information as required.

Project Team
Structural Engineer. Hodgson Structural Design
Building Services Engineer. Hoare Lea
Quantity Surveyor. Gardiner and Theobald
Project Manager. Gardiner and Theobald
Planning Consultant. Cushman Wakefield
Principle Contractor. ADT
Photography. Tom Bird
Initial Site Visit
Material Samples
Concept look and feel CGI ground floor welcome area
Ground Floor Auditorium Concept CGI
First Floor Concept CGI
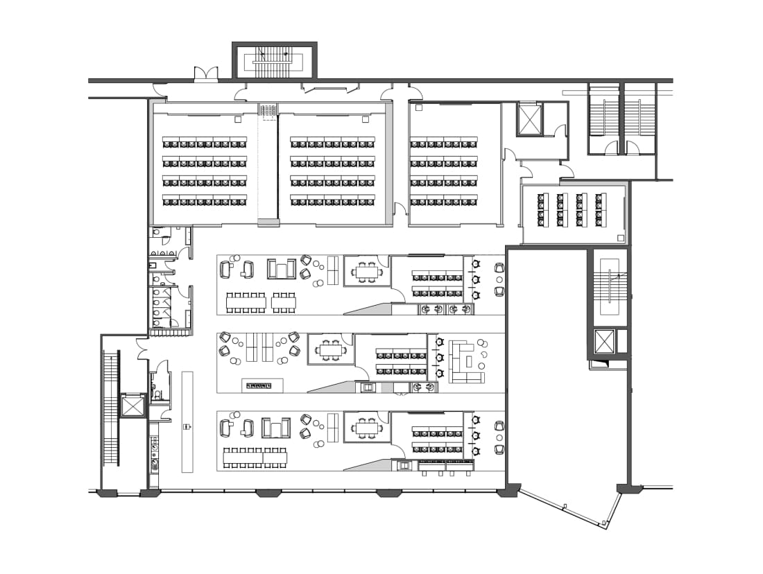
Ground Floor Plan
First Floor Plan

Similar Projects

View
University of Salford NERIC (Robotics)
A catalyst University research facility to further the application of robotics within the health, food and automotive sectors.
View
Manchester Metropolitan University Student Hubs
Supporting Manchester Metropolitan University's student journey transformation programme, our new Student Hubs re-imagine the delivery of student support and guidance services in a new vibrant customer focussed environment.