Halton Housing Trust HQ

A technology enabled, agile and flexible workplace, which challenged the everyday operation and mindset of the office to create a “home away from home”.

Halton Housing Trust HQ

A technology enabled, agile and flexible workplace, which challenged the everyday operation and mindset of the office to create a “home away from home”.

Client. Halton Housing Trust
Location. Widnes
Value & Size. £3.5 million / 16,150 sqft
Services. Architecture / interiors
Status. Completed

5plus designed and obtained planning consent for Halton Housing Trust’s (HHT) new HQ and construction service building in Widnes town centre. HHT is a dynamic, not for profit, housing association that owns and manages over 6,500 homes and employs over 280 staff. The aim of the new building was to consolidate their estate and co-locate head office and building services.

We worked closely with HHT to undertake workplace consultancy and develop a brief which supported modern methods of working. Early engagement and consultation across the organisation developed a bespoke package which challenged the everyday operation and mindset of the office. Now complete, the building is extremely well utilised striking a balance between a “home away from home” and a workplace, allowing and optimising flexible working methods.

Externally, the form and materiality of the building borrows from the adjacent residential development and also references the primary function of the organisation. Four roofscape forms act as mini-atria, allowing natural light to penetrate the building and provide passive stack ventilation. Solar shading on the south elevations reduces internal heat gains whilst allowing views onto a south facing, landscaped terrace.

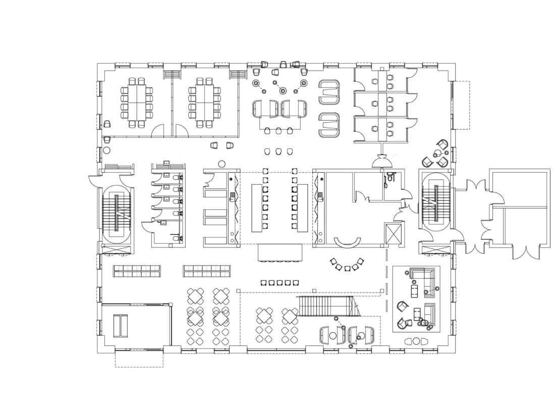
Internally, the 1,500sqm office building is split across two levels, with the stair cores pushed to the perimeter of the building to allow for a ‘service’ spine between the office spaces. The building is derived from a 1.5m planning module and is arranged around a central, double-height atrium providing good daylight penetration to all areas of the floor plates. The atrium acts as a hub of activity and connectivity between the office wings.

Project Team
Project Manager. Redbourn group Limited
Quantity Surveyor. Savills
M&E Engineer. ESD
Structural Engineer. Alan Johnson Partnership
Contractor. Russells Construction
Awards
BCO Test of Time, Highly Commended
MSA President’s Award
BCO Regional, Corporate Workplace Award
Concept CGI
Axo Diagram
Section

“It’s a home away from home”

Vikki Mack, Executive Assistant and Facilities Coordinator
Halton housing Trust
Ground Floor Plan
First Floor Plan

Similar Projects

View
Onward Homes HQ
Creating a flexible open workspace that facilitates transformational change for Onward Homes’ Liverpool office.
View
Southway Housing Trust HQ
Transforming an existing obsolete office into an activity based headquarters. The client requested a ‘no compromise’, contemporary office that reflects the principles of the business: openness, honesty and ambition.