Onward Homes HQ

Creating a flexible open workspace that facilitates transformational change for Onward Homes’ Liverpool office.

Onward Homes HQ

Creating a flexible open workspace that facilitates transformational change for Onward Homes’ Liverpool office.

Client. Onward Homes
Location. Liverpool
Value & Size. £1.2 million / 20,000 sqft
Services. Architecture / Interiors
Status. Completed

We have a strong track record in providing exciting new offices for housing associations, and our latest is the Onward HQ in Liverpool City Centre. Moving to the Watson Building, Onward’s brief to us was to guide them through a transformational change in the way they worked like we have done for many of our previous clients.

This involved extensive client briefing, vision and change workshops to thoroughly understand the way that they operate and the opportunities to challenge and change that for their new office.

Timescales were tight and the budget was tighter still. But this in familiar territory for us and as commercial architects we spend our clients money carefully regardless of the scale and budget. Budget constraints forced us to think carefully about what retained and what interventions we added into the new two floor office.

The completed scheme is a beautifully sensitive and inspiring space, where the feeling of openness or privacy, active or quiet are balanced around the various activity based settings. Daylight penetration was carefully considered to maximise the well being in all areas and this is supplemented by a generous biophilic planting scheme.

Project Team
Photography. Tom Bird

“The traditional office environment is changing, and the new workspace will provide an adaptable solution that is both an attractive working environment and versatile for our needs.”

Bronwen Rapley, Chief Executive
Onward Homes
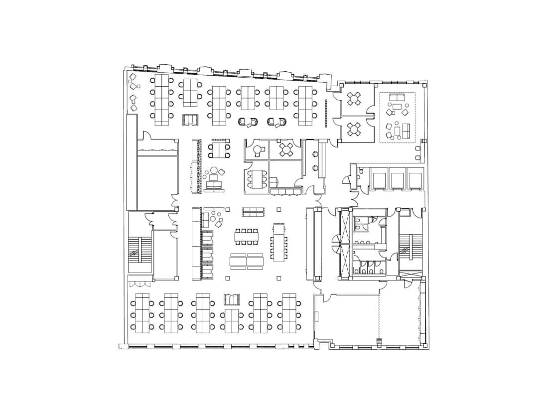
Level 4 Floor Plan
Level 5 Floor Plan

Similar Projects

View
Southway Housing Trust HQ
Transforming an existing obsolete office into an activity based headquarters. The client requested a ‘no compromise’, contemporary office that reflects the principles of the business: openness, honesty and ambition.
View
Halton Housing Trust HQ
A technology enabled, agile and flexible workplace, which challenged the everyday operation and mindset of the office to create a “home away from home”.