Southway Housing Trust HQ

Transforming an existing obsolete office into an activity based headquarters. The client requested a ‘no compromise’, contemporary office that reflects the principles of the business: openness, honesty and ambition.

Southway Housing Trust HQ

Transforming an existing obsolete office into an activity based headquarters. The client requested a ‘no compromise’, contemporary office that reflects the principles of the business: openness, honesty and ambition.

Client. Southway Housing Trust
Location. Manchester
Value & Size. £2.7 million / 18,000 sqft
Services. Architecture / interiors
Status. Completed

We were commissioned to produce a feasibility study for the Southern Gate site for client Southway Housing Trust. From this initial feasibility process, a scheme for a new headquarters was developed into a full planning application. The brief was to develop a high quality internal fit-out, new entrance extension plus associated landscape areas.

The client requested a ‘no compromise’, contemporary office that reflects the principles of the business: openness, honesty and ambition. The key drivers within the brief were to provide a future-proofed and environmentally friendly building, which is both flexible in terms of workspace and future technologies.

We increased the ground floor accommodation and core reception space to 707sqm (GIA), including a 40sqm entrance extension, addressing the gateway location. With a focus on sustainability, we have concentrated on a betterment of the existing fabric and raising the EPC Rating, where we have achieved a 50% improvement across the refurbishment. Alongside this we were commissioned to design the wayfinding and signage around the building.

A bespoke graphics and way-finding strategy was developed and produced in-house. In light of the nature of the business, the brief and vision for the graphics was to provide a homely and friendly language; it needed to be playful and memorable. In response and working with their brand guidelines we developed a suite of bespoke ‘humanised’ icons – using hands instead of arrows and descriptive language instead of formal words.

The project completed in July 2018 and was subsequently shortlisted for both a Mixology North and a BCO Regional Award.

Project Team
Principle Contractor. Ardmac
Project Manager. Saffer Cooper
Structural Engineers. Renaissance
M&E Design Consultants. Project 23
Quantity Surveyors. Gardiner & Theobald
Landscape Architect. Layer Landscape Studio
IT Consultant. Shaw Consulting
Photography. Felix Mooneeram

Existing Site
Concept Sketch
Concept Sketch
Axo Drawing
Concept CGI

“Today has been a great day for Southway. The new building is already proving to be a really positive working environment and our staff all seem very happy with their new home… I just wanted to send you an early thank you. You have been a great team, we have all really enjoyed working with you, and the nearly finished product is exactly what we wanted”.

Karen Mitchell, Chief Executive
Southway Housing Trust
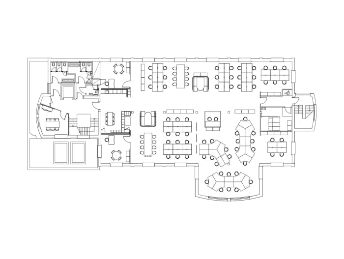
Ground Floor Plan
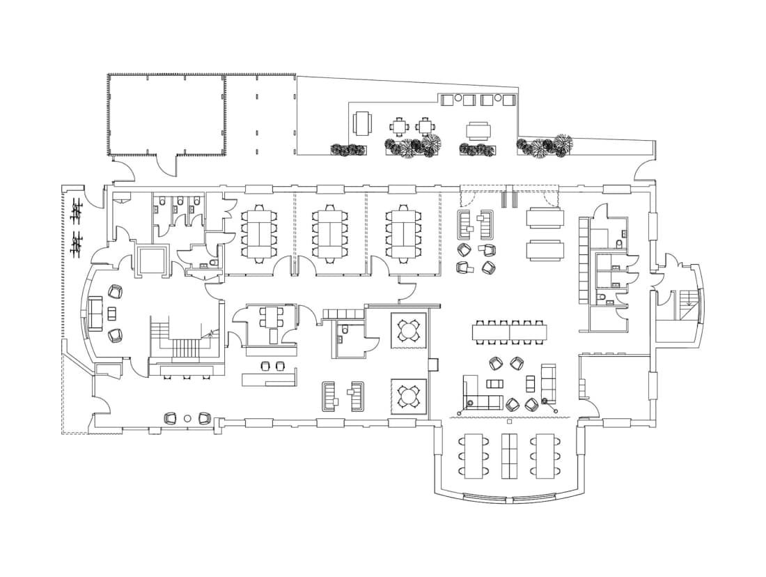
First Floor Plan

Similar Projects

View
Halton Housing Trust HQ
A technology enabled, agile and flexible workplace, which challenged the everyday operation and mindset of the office to create a “home away from home”.
View
Merseyway Innovation Centre Stockport
Refurbishment of existing retail space to create a co-working offering with private offices and supporting spaces.